Beschrijving

Levensloopbestendige hoekwoningen – Hoofdstraat 1B en 3 Varsselder. 

Comfortabel en toekomstbestendig wonen Plan De Zon te Varsselder.
Op de locatie van het voormalige zalencentrum De Zon in Varsselder wordt een kleinschalig nieuwbouwplan gerealiseerd: Plan De Zon. Binnen dit plan worden twee levensloopbestendige hoekwoningen gebouwd. Deze woningen zijn speciaal ontworpen voor comfortabel wonen, nu én in de toekomst. Dankzij een slaapkamer en badkamer op de begane grond is gelijkvloers wonen mogelijk.

Indeling

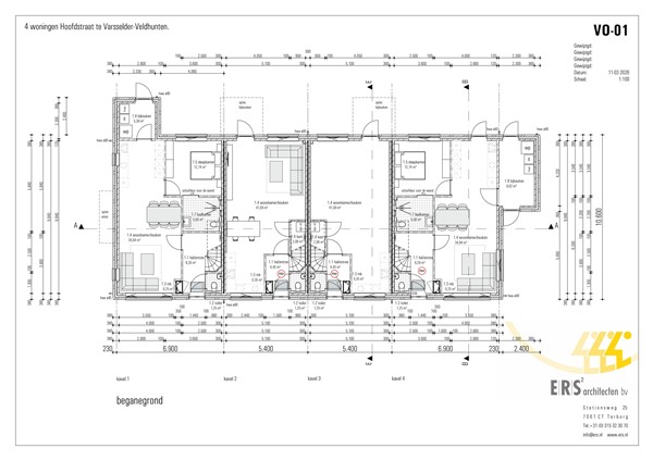
De begane grond beschikt over een entree, toiletruimte, lichte woonkamer met open keuken en directe verbinding met de achtertuin. Bijkeuken, slaapkamer en badkamer. Grote raampartijen zorgen voor veel daglicht en een prettige leefruimte.

Uniek aan deze woningen is de slaapkamer en badkamer op de begane grond, waardoor de woning levensloopbestendig is en geschikt blijft voor verschillende levensfasen.

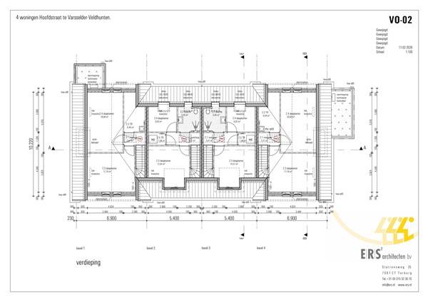
Op de verdieping bevinden zich 2 extra slaapkamers en daarnaast een extra ruimte zonder daglichttoetreding. Deze ruimte kan bijvoorbeeld worden gebruikt als royale berging, inloopkast of eventueel als tweede badkamer.

Via een vlizotrap is de zolder bereikbaar voor extra bergruimte.

Duurzaam en energiezuinig.
Deze woningen worden volledig nieuw gebouwd en voldoen aan de moderne eisen van duurzaam wonen. 

De woningen worden onder andere voorzien van:
• lucht/water warmtepomp
• 6 zonnepanelen
• hoogwaardige isolatie
• energiezuinige installaties

Hierdoor woont u comfortabel en energiezuinig.

Architectuur.
De architectuur sluit mooi aan bij de omgeving. Warme rood genuanceerde baksteen wordt gecombineerd met donkere keramische dakpannen, kunststof kozijnen en subtiele wit- en antracietkleurige accenten. Dit zorgt voor een rustige en tijdloze uitstraling die past binnen het straatbeeld van Varsselder.

Woninggegevens: 

Bouwnummer 1
Kavel: ca. 315 m²
Woonoppervlak: ca. 124 m²
Inhoud: ca. 365 m³
Koopsom € 475.000,- v.o.n.

Bouwnummer 4
Kavel: ca. 334 m²
Woonoppervlak: ca. 128 m²
Inhoud: ca. 378 m³
Koopsom € 475.000,- v.o.n.

De genoemde koopsommen zijn vrij op naam en exclusief keuken en sanitair.

Wonen in Varsselder.
Varsselder biedt rust, ruimte en een sterke dorpsgemeenschap. De groene omgeving en het buitengebied liggen vlakbij, terwijl Ulft, Terborg en Doetinchem goed bereikbaar zijn.

Een ideale plek voor wie comfortabel wil wonen met het gemak van nieuwbouw.

Interesse in deze woningen? 
Wij vragen u vriendelijk uw interesse en vragen per email aan ons kenbaar te maken. 

De artist impression, eerste foto is gemaakt met AI.

Kenmerken